Rijwoning C22
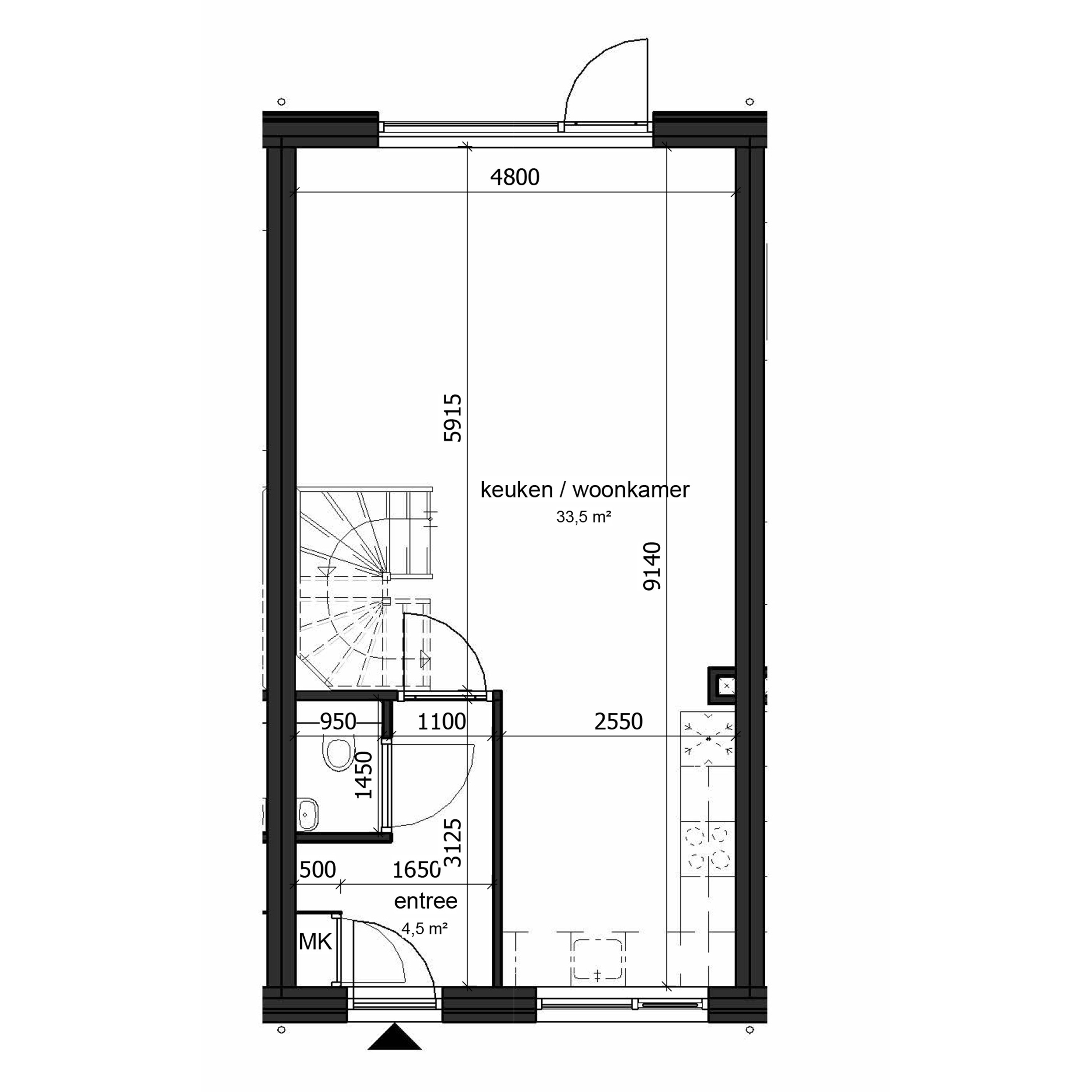
De rijwoningen van IJsseldal zijn efficiënt ingedeeld met beneden een hal met toilet en een grote living met open keuken. De open trap geeft nog een extra ruimtelijk effect. Boven kom je in een open ruimte waaraan drie slaapkamers en een badkamer met tweede toilet grenzen. Op de ruime zolder is plek voor wasmachine en droger en kan ook nog een vierde slaap- of hobbykamer worden gecreëerd.
| bouwnummer | C22 |
| gebruiksoppervlak | 107 m² |
| kaveloppervlak | 131 m² |
| aantal kamers* | 4 |
| berging | 5 m² |
* woonkamer + slaapkamers
Interesse?
Vraag een gesprek aan met de makelaar





