Tweekapper A4
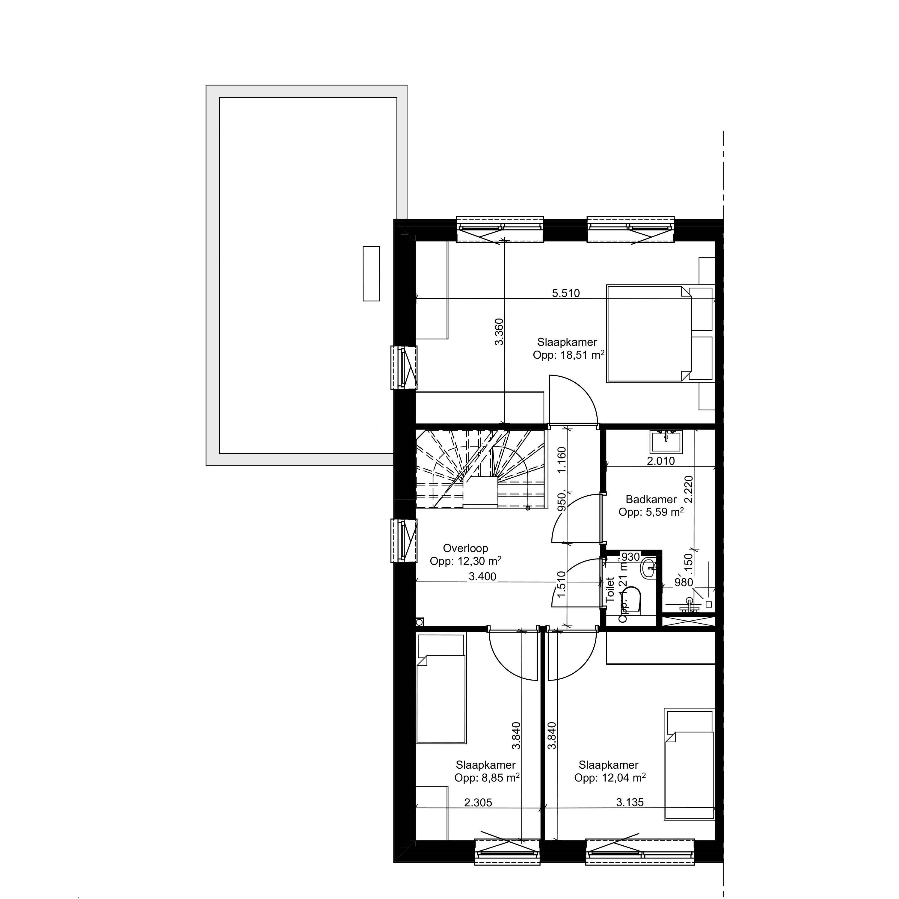
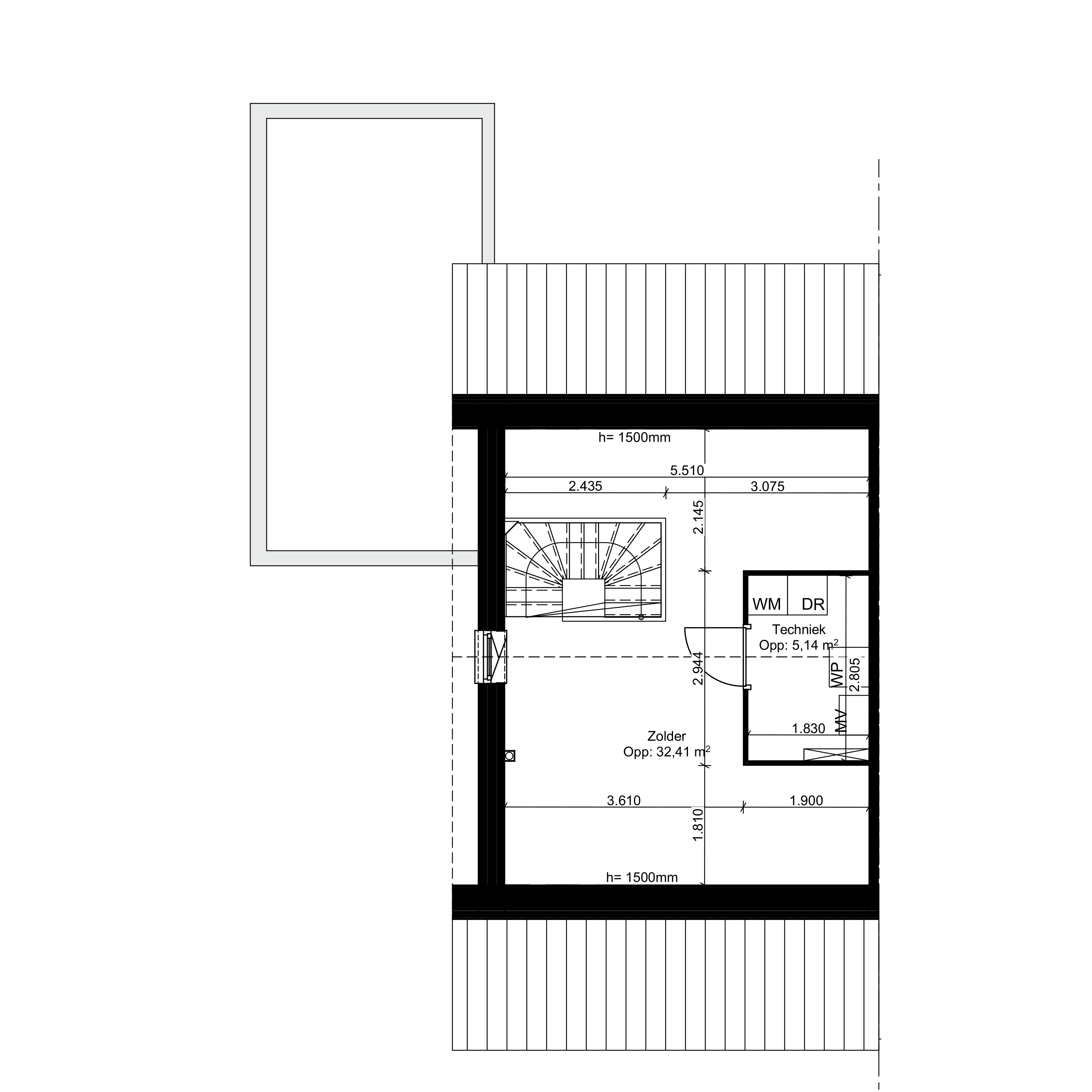
Op een mooie rustige plek, daar waar IJsseldal grenst aan het akkerland, worden zes tweekappers gebouwd met een garage. Op de begane grond een grote living met open keuken. Op de eerste verdieping drie slaapkamers en een ruime badkamer met apart toilet en op de tweede verdieping mogelijkheid voor een extra slaap- of hobbykamer, bergruimte en plek voor de wasmachine en droger.
| bouwnummer | A4 |
| gebruiksoppervlak | 159 m² |
| kaveloppervlak | 253 m² |
| aantal kamers* | 4 |
| berging | 21 m² |
* woonkamer + slaapkamers
Interesse?
Vraag een gesprek aan met de makelaar






